Spargi

Spargi Apartment

Spargi represents a premium two-bedroom residence that seamlessly blends contemporary comfort, sophisticated design, and an enviable location on the enchanting island of La Maddalena, complemented by an expansive private garden.

Click on floor plans to enlarge

Wall Layout Plans
Furnished Layout
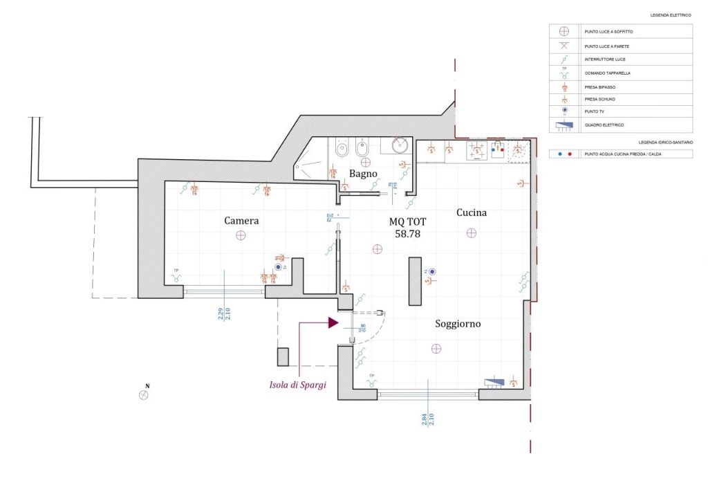
Electrical Systems Plan

Property Features

Info

The apartment features a bedroom, bathroom, and an open-space living area, perfect both for seasonal personal use and as a rental investment. The living area integrates kitchen, dining, and lounge in a welcoming and well-lit environment. The finishes are high-quality, with selected materials and artisanally crafted details. The thermal and acoustic insulation ensures living comfort and energy savings. The private garden offers an ideal outdoor space for relaxing moments, with breathtaking views of the islands of Caprera and Santo Stefano. Just steps from the center of La Maddalena, featuring a functional spatial layout thoughtfully designed for optimal livability, Caprera represents an exclusive opportunity, exceptional for its quality and location, ideal as a secure investment or as a charming retreat in Sardinia

Contacts

Request Information

An exclusive project deserves direct and personalised dialogue. Our availability extends beyond standard office hours to accommodate busy professionals throughout the day. Every detail matters when it comes to quality investments, which is why we provide multilingual assistance services – in Italian, English and German – for initial enquiries, followed by dedicated consultation from our designated specialists.

Sales

To arrange a personalized property viewing or for sales-related inquiries, please contact sales@mistralmaddalena.com

Info

For specific and/or technical information, please write to: info@mistralmaddalena.com

Telephone

Our reception team is at your disposal to answer initial inquiries and provide you with a comprehensive overview of available units. You may contact +39 335 813 2790from Monday to Saturday, 8:00 AM to 10:00 PM.

Development Brochure

Download here

Apartment's Brochure

COMING SOON