Razzoli

Top Unit Razzoli

The Razzoli apartment, with its southwest orientation, benefits from natural wind protection thanks to the surrounding park hill. It also boasts a stunning terrace from which to enjoy breathtaking sea views.

Click on floor plans to enlarge

Wall Layout Plans​
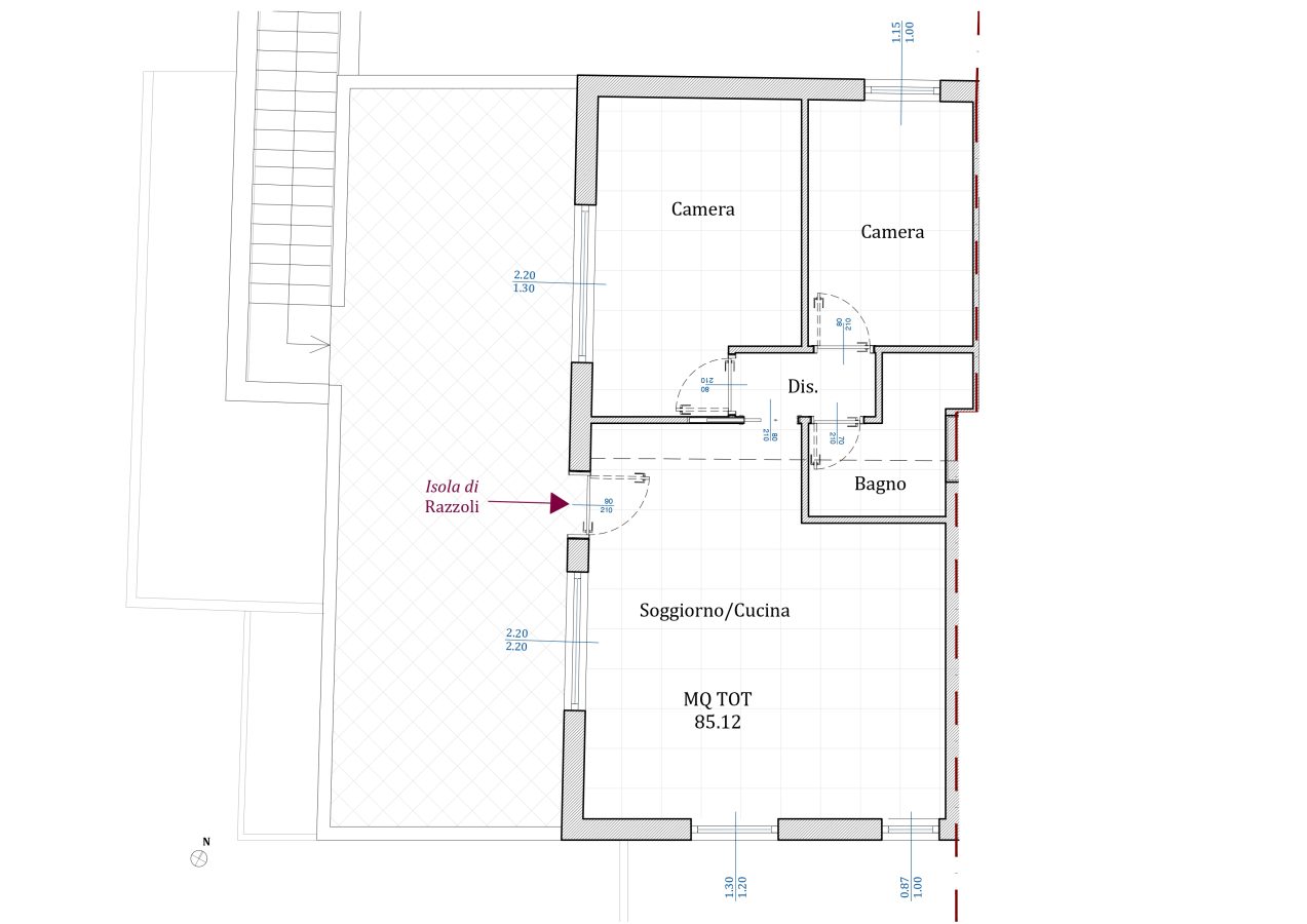
Furnished Layout

Property Features

Info

Info NOTE: Due to the possibility of having one or two units, the apartments on the second floor are currently built only with: external walls and areas, window frames, and exposed wooden roof; internal divisions are entirely customizable upon client request.

Located on the top floor, the “Razzoli” penthouse offers an exclusive living experience with spectacular views of the islands of Caprera and Santo Stefano. The spaces, bright and harmoniously distributed, are enhanced by a refined insulated wooden roof that ensures optimal thermal comfort in every season. The living area opens onto a large private terrace, perfect for relaxing moments surrounded by the greenery of the natural park. Privacy is absolute thanks to its privileged location in the heart of nature, just minutes from the lively historic center of La Maddalena. Equipped with all modern comforts and premium finishes, it is ideal for those seeking tranquility without giving up convenience. A unique opportunity to experience the most authentic Sardinia, with the sea always in the spotlight—whether as a primary residence or as a prestigious rental investment.

Contacts

Request Information

An exclusive project deserves direct and personalised dialogue. Our availability extends beyond standard office hours to accommodate busy professionals throughout the day. Every detail matters when it comes to quality investments, which is why we provide multilingual assistance services – in Italian, English and German – for initial enquiries, followed by dedicated consultation from our designated specialists.

Sales

To arrange a personalized property viewing or for sales-related inquiries, please contact sales@mistralmaddalena.com

Info

For specific and/or technical information, please write to: info@mistralmaddalena.com

Telephone

Our reception team is at your disposal to answer initial inquiries and provide you with a comprehensive overview of available units. You may contact +39 335 813 2790from Monday to Saturday, 8:00 AM to 10:00 PM.

Development Brochure

Download here

Apartment's Brochure

COMING SOON