Caprera

Caprera Apartment

An elegant three-room residence of exceptional quality, featuring a coveted south-facing orientation that ensures abundant natural light throughout the day. Situated in a prime location on the prestigious island of La Maddalena, this sophisticated property offers discerning buyers an unparalleled living experience in one of Sardinia’s most sought-after destinations.

Click on floor plans to enlarge

Structural floor plan
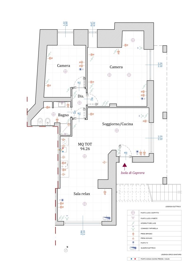
Furnished floor plan
Electrical systems plan

Property Features

Info

The Caprera apartment presents an exceptional opportunity for discerning buyers seeking either an exclusive holiday residence or a sound rental investment. The open-plan living area seamlessly integrates the kitchen, dining, and lounge spaces, creating a bright and airy environment perfect for both daily living and entertaining guests.
The two bedrooms are thoughtfully positioned away from the living areas, ensuring complete privacy and tranquillity, while the contemporary bathroom features premium finishes throughout. The property showcases superior specifications that exceed market standards, with carefully selected durable and refined materials evident in every detail.
State-of-the-art thermal and acoustic insulation guarantees year-round comfort and peaceful interior ambience. The property’s crowning feature is the private garden, providing an idyllic outdoor retreat with breathtaking views across the archipelago islands.
Strategically positioned within lush natural surroundings yet just minutes from La Maddalena’s town centre, Caprera delivers the perfect harmony of privacy, natural beauty, and convenient access to local amenities.

Contacts

Request Information

An exclusive project deserves direct and personalised dialogue. Our availability extends beyond standard office hours to accommodate busy professionals throughout the day. Every detail matters when it comes to quality investments, which is why we provide multilingual assistance services – in Italian, English and German – for initial enquiries, followed by dedicated consultation from our designated specialists.

Sales

To arrange a personalized property viewing or for sales-related inquiries, please contact sales@mistralmaddalena.com

Info

For specific and/or technical information, please write to: info@mistralmaddalena.com

Telephone

Our reception team is at your disposal to answer initial inquiries and provide you with a comprehensive overview of available units. You may contact +39 335 813 2790from Monday to Saturday, 8:00 AM to 10:00 PM.

Development Brochure

Download here

Apartment's Brochure

COMING SOON