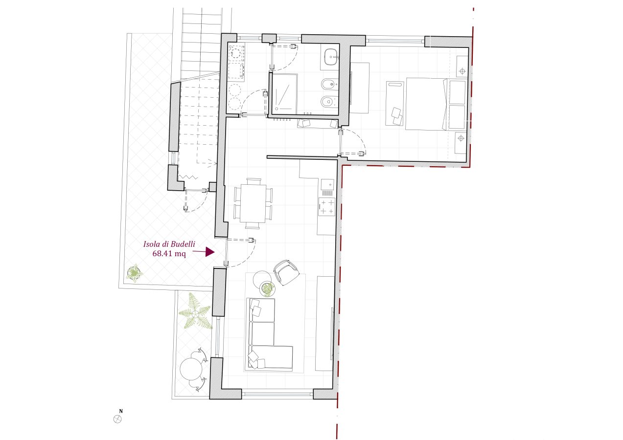
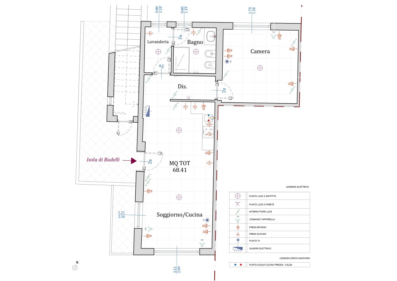
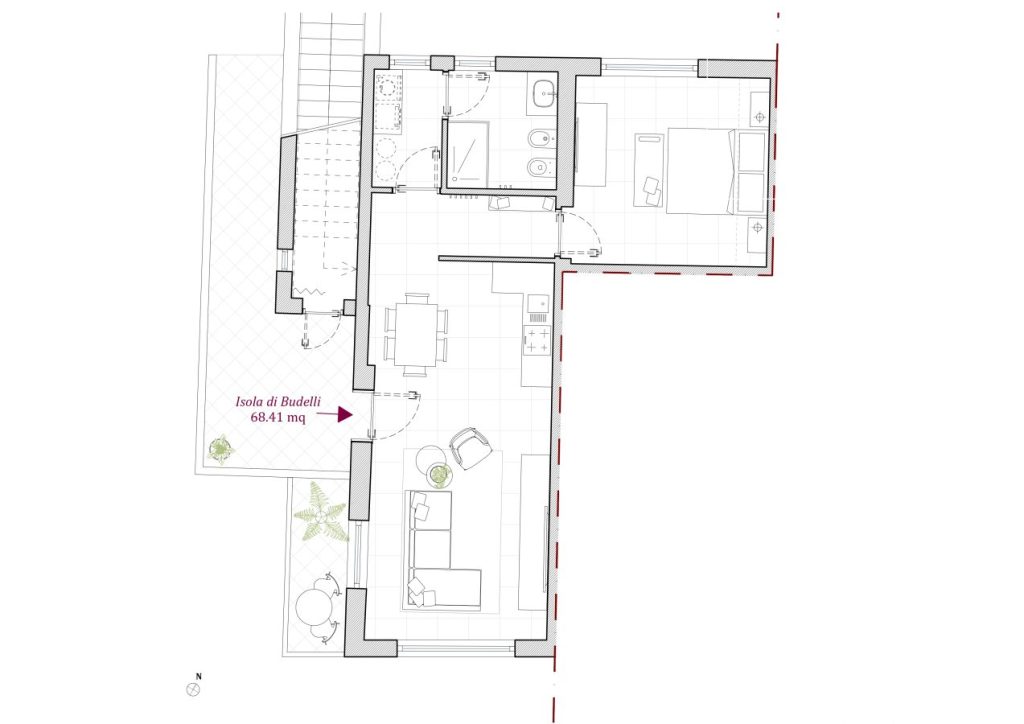
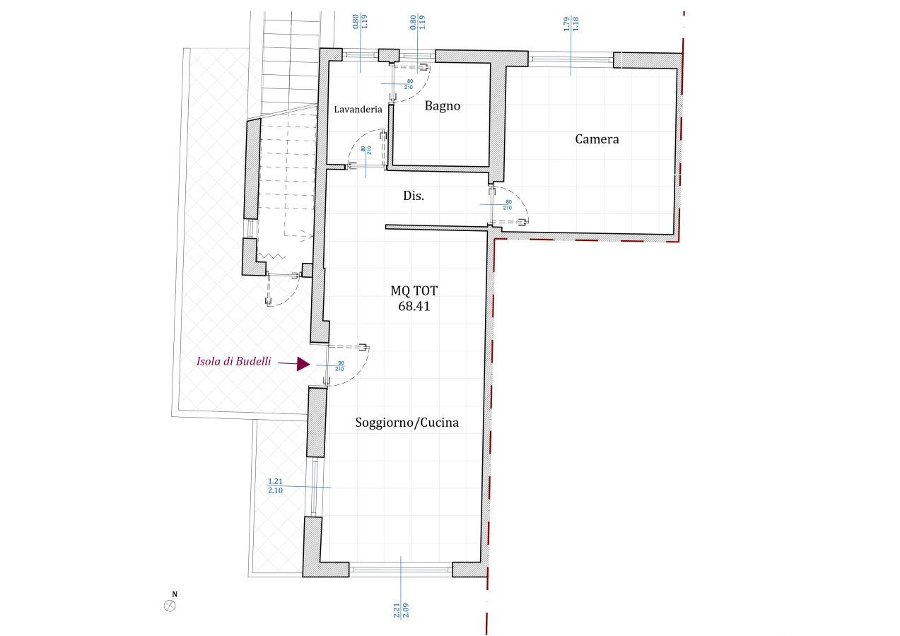
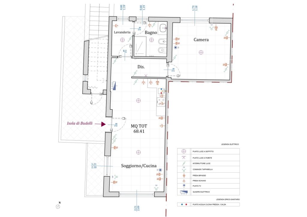
The two-bedroom “Budelli” residence seamlessly blends elegance with functionality, creating harmonious spaces designed to deliver uncompromising comfort.
Enter through an open-plan living area with sweeping sea views, where the lounge, dining area, and kitchen flow together in a fluid, contemporary environment. The private garden, directly accessible from the living space, creates a verdant sanctuary perfect for outdoor relaxation. Premium finishes—from modern-cut porcelain tile flooring to sophisticated bathroom fittings—complement high-performance windows and doors, ensuring exceptional thermal and acoustic insulation.
A generous private storage room adds practical convenience, meeting the needs of those who value perfectly organised living spaces. Set within peaceful, landscaped surroundings yet just minutes from the town centre and essential amenities, this development represents an ideal solution for discerning buyers seeking either a luxury personal residence or a sound investment opportunity for rental income.
This is an exceptional opportunity that combines superior construction quality, residential comfort, and strong appreciation potential over time.
An exclusive project deserves direct and personalised dialogue. Our availability extends beyond standard office hours to accommodate busy professionals throughout the day. Every detail matters when it comes to quality investments, which is why we provide multilingual assistance services – in Italian, English and German – for initial enquiries, followed by dedicated consultation from our designated specialists.
To arrange a personalized property viewing or for sales-related inquiries, please contact sales@mistralmaddalena.com
For specific and/or technical information, please write to: info@mistralmaddalena.com
Our reception team is at your disposal to answer initial inquiries and provide you with a comprehensive overview of available units. You may contact +39 335 813 2790from Monday to Saturday, 8:00 AM to 10:00 PM.
⇩ Download here
COMING SOON