Questo appartamento, grazie al suo orientamento a sud-est, offre una spettacolare esposizione verso il mare, garantendo privacy assoluta e panorami straordinari. La sua posizione privilegiata regala viste uniche, rendendo ogni momento un’esperienza esclusiva a contatto con la bellezza della natura.
NOTA: Per via della possibilità di avere una o due unità, gli appartamenti del piano due al momento sono realizzati solo per: pareti e zone esterne, serramenti e tetto in legno a vista; le divisioni interne sono completamente da realizzare su richiesta del cliente.
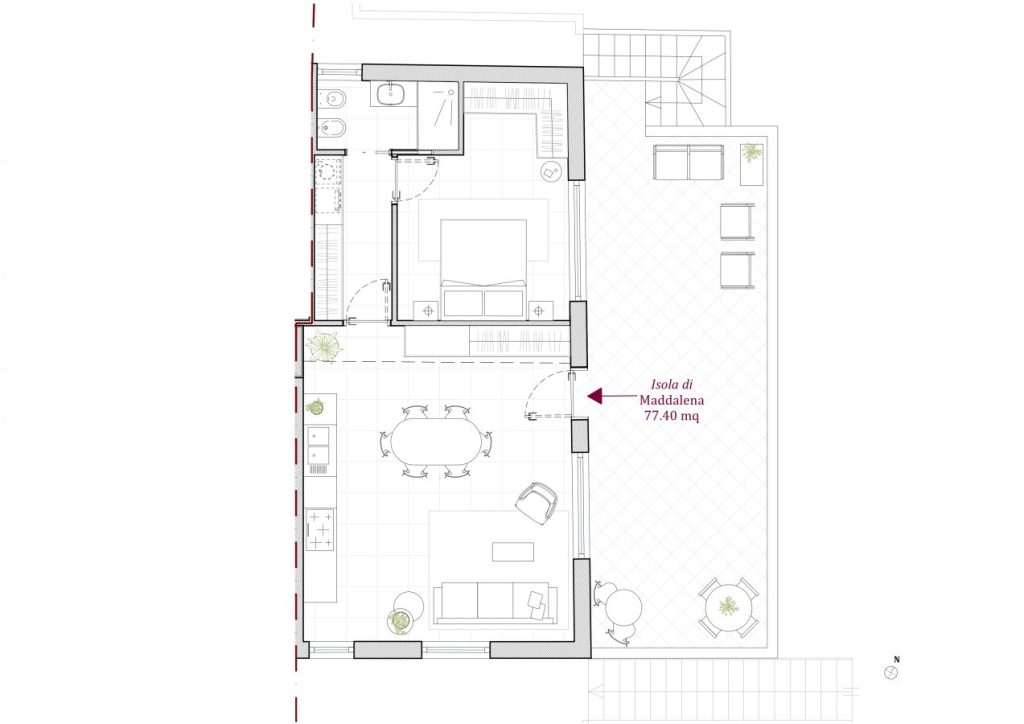
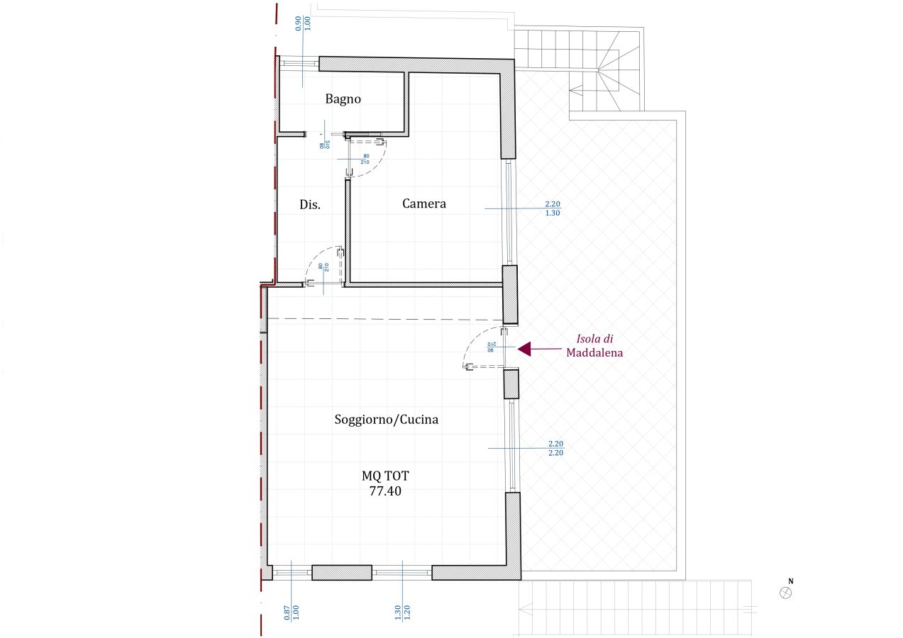
La scelta perfetta per chi desidera vivere in un contesto esclusivo, all’ultimo piano, con una vista mozzafiato sulle acque cristalline di Caprera e Santo Stefano. L’abitazione, impreziosita da un raffinato tetto in legno isolato, offre ambienti spaziosi e luminosi che si affacciano su una terrazza panoramica privata, ideale per ammirare tramonti indimenticabili e godere di momenti di relax in totale privacy. Immerso nel verde di un parco privato, assicura massima riservatezza e tranquillità, pur trovandosi a pochi minuti dal vivace centro storico di La Maddalena. Le finiture di alta qualità e l’attenzione ai dettagli rendono questa proprietà unica nel suo genere, perfetta per chi cerca un’oasi di pace senza rinunciare alla comodità dei servizi. Un investimento prestigioso e sicuro, pensato per chi vuole il meglio da una casa al mare.
Un progetto esclusivo merita un dialogo diretto e personalizzato. La nostra disponibilità va oltre i semplici orari di ufficio per agevolare persone impegnate durante il giorno. Ogni dettaglio conta quando si tratta di investimenti di qualità, e per questo mettiamo a disposizione un servizio di assistenza – in italiano, inglese e tedesco – per le informazioni di base con un follow up successivo da parte degli incaricati designati
Per organizzare un sopralluogo personalizzato o per contatti legati alla vendita, scrivi a sales@mistralmaddalena.com
Per informazioni specifiche e/o tecniche, puoi invece scrivere a: info@mistralmaddalena.com
La nostra segreteria è a tua disposizione per rispondere alle prime domande e fornirti un quadro completo delle opportunità di unita’ ancora disponibili. Puoi contattare lo +39 335 813 2790 dal lunedì al sabato, dalle 8:00 alle 22:00.
⇩ Scarica qui
COMING SOON
La Maddalena: Ihr privates Refugium im Mittelmeer
Stellen Sie sich Ihren Morgenkaffee auf einer privaten Terrasse vor, den Blick über die kristallklaren Gewässer des Mittelmeers gerichtet, umgeben von der unberührten Natur einer zeitlos schönen Insel. Nur wenige Schritte vom Herzen eines exklusiven Ortes entfernt, wo jede Gasse authentische italienische Geschichten erzählt—das ist die Realität, die Sie bei einer Investition in La Maddalena erwartet.

Ganzjährig Sonne und reine Luft
La Maddalena genießt über 300 Sonnentage im Jahr: milde Sommer dank der erfrischenden Meeresbrise, sanfte Winter mit Temperaturen, die selten unter 10°C fallen. Die reine Luft, begünstigt durch Naturschutzgebiete und das Fehlen industrieller Entwicklung, fördert das körperliche und geistige Wohlbefinden… positive Auswirkungen auf Gelenke, Stimmung und Atmung sind für alle Bewohner kostenlos inbegriffen!

Leben an einem der gesündesten Orte der Welt
Sardinien gilt als „Blaue Zone” – eine der seltenen Regionen, in denen außergewöhnliche Lebensqualität eine bemerkenswerte Langlebigkeit fördert. Hier wird der Lebensstil zum integralen Bestandteil des Wohlbefindens: mediterrane Küche mit frischem Fisch und regionalen Erzeugnissen, tägliche Spaziergänge durch unberührte Landschaften und Momente der Entspannung, die sich vom Luxus zur selbstverständlichen Routine wandeln.
Ein Zuhause hier zu besitzen bedeutet, in eine Welt einzutreten, in der jeder Tag auf natürliche Weise Gesundheit und Vitalität fördert.
Perfekte Lage: Privatsphäre und Komfort
Vor die Haustür treten und sich inmitten der mediterranen Macchia wiederfinden, mit dem Gefühl, in einer privaten Oase zu sein: das ist das Ambiente des MISTRAL-Projekts. Gleichzeitig erreichen Sie in wenigen Gehminuten das Zentrum von La Maddalena mit seinen einladenden Restaurants, charakteristischen Geschäften und jener besonderen Piazza-Atmosphäre, die jeden Abend zu etwas Besonderem macht.

Was diesen Ort einzigartig macht:
Die Vorteile von La Maddalena
La Maddalena ist ein geschütztes Juwel: Der Archipel steht als Nationalpark unter Schutz, wodurch die Entwicklung kontrolliert bleibt und die Authentizität unberührt erhalten wird. Dies bedeutet:
Solide finanzielle Grundlagen
Der italienische Immobilienmarkt, insbesondere in prestigeträchtigen Lagen wie La Maddalena, bietet Stabilität und gleichmäßiges Wachstum im Vergleich zu volatileren Märkten. Wesentliche Investitionsvorteile:
Günstige Marktdynamik:
Exklusive Vermietungsmöglichkeiten
La Maddalena zieht anspruchsvolle Reisende an: Segelbegeisterte, Wellness-Liebhaber und Gäste auf der Suche nach authentischen Erlebnissen. In der Hochsaison (Juni bis September) herrscht außergewöhnlich starke Nachfrage, während die Nebensaison Gäste anzieht, die das perfekte Klima ohne die Sommermassen genießen möchten. Eine sorgfältig gepflegte Immobilie mit erstklassigen Annehmlichkeiten kann erhebliche Mieteinnahmen generieren.
Authentische Verbindungen
Hier ist die Gemeinschaft vielfältig und dennoch vereint: ehemalige Fachkräfte, die sich für ein ruhigeres Leben entschieden haben, Künstler, die vom außergewöhnlichem Licht inspiriert sind, und Familien, die ihre Kinder in einer sicheren und anregenden Umgebung aufziehen. Die Einheimischen heißen mit Stolz diejenigen willkommen, die die Insel wirklich zu schätzen wissen, und schaffen so echte und dauerhafte Beziehungen.
Aktivitäten, die Körper und Geist nähren

Warum jetzt handeln
In La Maddalena zu investieren bedeutet nicht nur, eine Qualitätsimmobilie zu erwerben…


…Es ist die Wahl eines Lebensstils, der Wohlbefinden, authentische Schönheit und echte Beziehungen vereint. Ob Sie ein exklusives Feriendomizil, eine Investitionsmöglichkeit oder einen Rückzugsort suchen, an dem Sie entschleunigen können – unsere Residenzen bieten den idealen Ausgangspunkt. Sie werden sofort spüren, dass hier “wahrer Luxus” Privatsphäre, unberührte Natur und die authentischen Erfahrungen bedeutet, die nur ein solcher Ort garantieren kann. Kontaktieren Sie uns, um zu entdecken, wie Sie Ihren mediterranen Traum leben können.